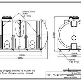
Цистерна горизонтальная 11000 литров, с перегородкой, с дыхательным клапаном
Возможна платная доставка по РБ
Наличный, безналичный расчет. Цены указаны с НДС
КП для печати
Описание
Горизонтальная цилиндрическая емкость с четырьмя опорными площадками и с вместимостью около 11000 л - предназначена в основном для приготовления («растворный узел») и транспортировки растворов к местам проведения работ полевыми с/х опрыскивателями («заправщик»).
Заполненная емкость, установленная и закрепленная в соответствии со специальными требованиями, может перемещаться на транспортном средстве со скоростями до 30 км/час.
Фото с примером:

Наличие перфорированной перегородки внутри емкости уменьшает воздействие на стенки от ударов волн жидкости при движении автотранспортного средства и, как следствие, снижает влияние на его устойчивость и управляемость. Перегородка не препятствует доступу в смежные отсеки для проведения работ внутри, связанных с монтажом оборудования или с очисткой отсеков.
Сверху на емкости имеется люк-лаз с отверстием D 380мм, в котором может устанавливаться корзиночный сетчатый фильтр. При необходимости Потребитель может увеличить отверстие в горловине до D 530мм, т.к. его закрывает резьбовая крышка с резьбой D 580 мм.
Плоские площадки внизу торцевых поверхностей емкости позволяют устанавливать вварные патрубки ВПDN100 для подключения сливных шлангов и труб Ду=100 мм.
Помимо основного назначения емкость может использоваться для хранения и накопления различных жидкостей (вода, дизельное топливо и др.).
Дополнительно на емкость можно установить:
- сливные штуцеры с трубной резьбой от 1/2 до 2 1/2 дюйма;
- вварные патрубки с фланцем Dn100;
- уровнемеры;
- шаровые краны;
- переходники и т.п.
Примечания:
- Для механизации погрузочных работ (масса емкости около 450кг) при поставке – емкость установлена на транспортировочную паллету и грузится только через открытый боковой борт автомашины с помощью автопогрузчика с вилочным захватом.

- Для обеспечения возможности выгрузки емкости автокраном или тельфером с помощью мягких строп - сверху имеются две проушины.
- Подъем и опускание заполненной емкости – не допускается.
Характеристики
Объем |
11000 л
|
|---|---|
Высота |
2210 мм
|
Ширина |
2250 мм
|
Длина |
3750 мм
|
Производитель |
АНИОН |
|---|---|
Тип эксплуатации |
Наземная эксплуатация / для спецтехники
|
Материал |
Пластик, полиэтилен
|
Температурный режим |
-30°C до +60°C °C
|
Диаметр горловины |
380 мм
|
Цвет |
Синий
|
Форма |
цилиндрическая
|
Вес |
450 кг
|
Назначение |
для питьевой воды и пищевых веществ
|
